• Skip to Navigation
  • Skip to Content

Roberto Rijo arquitectos asociados

  • Estudio
    • Reseña
    • Premios
    • Prensa
  • Filosofía
  • Proyectos
    • Oficina + Comercial
      • G-Hart
      • La Marqueteria
      • Lounge and Restaurant
      • Plaza Lama
      • Veron Center
      • Plaza La Z
      • Banco Metropolitano
      • San Juan Shopping Center
      • Hooters SJSC.
      • CHIPS Food Spa (SJSC).
      • Ginaka 2.0
    • Edificios Residenciales
      • Condominio Alberto
      • Condominio Dual
      • Condominio Michelle
      • Marparaiso
      • Circa Residences
      • Ginaka 18
      • Condominio Idalia
      • Ala 6
    • Planeamiento
      • Estrategia De Intervencion
      • Sierra Fría Mountain Resort
      • The Mizin Villa
    • Residencias Privadas
      • Barranca 44
      • Monzon Marte
      • Casa Armeria
    • Complejos Residenciales
      • Casita Linda
      • Las gaviotas
      • Pradera Verde
      • Prados de San Luis
      • Arcoiris Sur
      • Villas del mirador
      • Residencial Gina Alexandra
      • Villas Michelle
    • Institucional
      • Escuela Bonita
    • Cocktail
  • Contacto
  • Area de Clientes
  • Español
  • English
  • Imágenes
  • Drawings

  • More
  • More
  • More
  • More
  • More
  • More
  • More
  • More
  • More
  • More
  • More
  • More
  • More
  • More
  • More
  • More
  • More
  • More

  Casa Armeria

Santo Domingo
Republica Dominicana
2008
 
Cliente: Inversiones Armeria
Estado: Construido
Area Lote: 440.55 M2
Area de construccion: 341.25 M2
Colaboradores
Arq. Elaine Rodriguez, Franklin Garcia
Consultores
Electricidad: Ing. Gabino Hernandez
Sanitarios: Alvari
Estructural: Ing. Nelson Tolentino
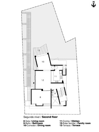
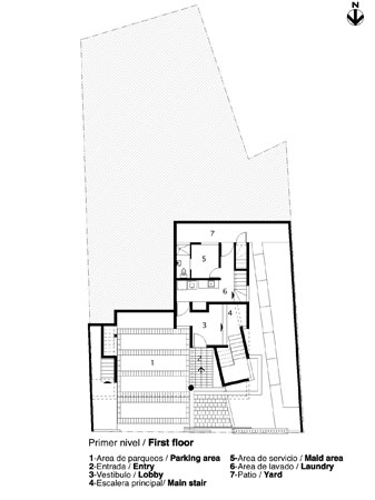
Descripción del Proyecto
Casa Armería es un desarrollo sobre un lote de aproximadamente 450 m2 en la urbanización Los Ríos en la ciudad de Santo Domingo, orientado norte-sur de forma irregular y topografía definida por dos terrazas diferenciadas por un desnivel de unos 4.00 m. La geometría que define el espacio habitable sigue a la forma natural del emplazamiento y los rigores del programa planteado. La casa ha sido proyectada en tres niveles: un primer nivel sobre la parte más baja y directamente conectada a la calle, que contiene los accesos, garaje, vestíbulo, áreas de servicio y los accesos verticales que la relacionan e interconectan con el segundo nivel, donde se encuentran las áreas sociales -comedor, cocina- orientadas hacia el área de terrazas y patio mediante aberturas que miran hacia el este y el sur. En el tercer nivel se disponen las áreas familiares y dormitorios, con aberturas y orientación norte, este y sur y cerrados hacia el oeste. Como resultado de la exploración formal se produce una articulación de dos volúmenes o masas descompuestas que se desplazan al azar, produciendo diferentes lecturas de relación, ya sea por yuxtaposición, penetración, por contraste mediante el uso de texturas, por proporciones geométricas a partir de la composición de las aperturas. Uno de los volúmenes se ve reforzado por el color, que se plantea como material intrínseco del volumen. Los enrejados se utilizan como parte del lenguaje formal; los aleros, tal que puntos de inflexión relacional. La conjunción de todos define el vestido del hábitat cotidiano.
  • Atrás
  • Leer más

© 2008. All rights reserved.   Roberto Rijo + arquitectos asociados   |  Contact  |  Site Design: Kounterattack Design