• Skip to Navigation
  • Skip to Content

Roberto Rijo arquitectos asociados

  • Estudio
    • Reseña
    • Premios
    • Prensa
  • Filosofía
  • Proyectos
    • Oficina + Comercial
      • G-Hart
      • La Marqueteria
      • Lounge and Restaurant
      • Plaza Lama
      • Veron Center
      • Plaza La Z
      • Banco Metropolitano
      • San Juan Shopping Center
      • Hooters SJSC.
      • CHIPS Food Spa (SJSC).
      • Ginaka 2.0
    • Edificios Residenciales
      • Condominio Alberto
      • Condominio Dual
      • Condominio Michelle
      • Marparaiso
      • Circa Residences
      • Ginaka 18
      • Condominio Idalia
      • Ala 6
    • Planeamiento
      • Estrategia De Intervencion
      • Sierra Fría Mountain Resort
      • The Mizin Villa
    • Residencias Privadas
      • Barranca 44
      • Monzon Marte
      • Casa Armeria
    • Complejos Residenciales
      • Casita Linda
      • Las gaviotas
      • Pradera Verde
      • Prados de San Luis
      • Arcoiris Sur
      • Villas del mirador
      • Residencial Gina Alexandra
      • Villas Michelle
    • Institucional
      • Escuela Bonita
    • Cocktail
  • Contacto
  • Area de Clientes
  • Español
  • English
  • Imágenes
  • Drawings

  • More
  • More
  • More
  • More
  • More
  • More
  • More
  • More
  • More
  • More
  • More
  • More
  • More
  • More
  • More
  • More
  • More
  • More

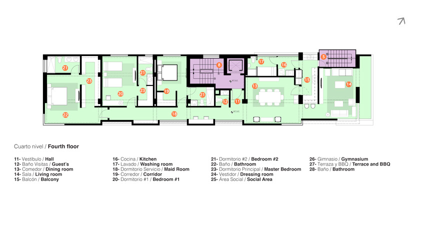
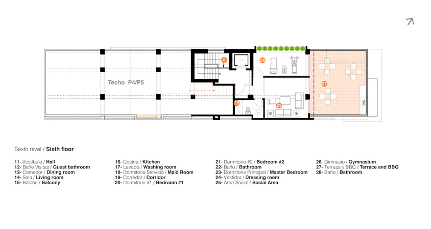
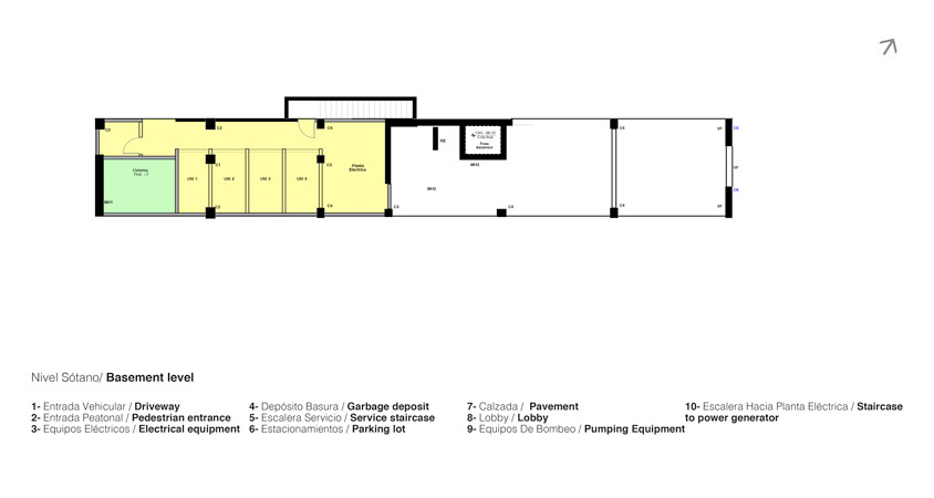
  Circa Residences

Santo Domingo
Republica Dominicana
2016
 
Cliente: Circa Residences
Estado: Construcción
Area Lote: 504.17 M2
Area de construccion: 1,211.17 M2
Colaboradores
Arq. Elaine Rodriguez, Hector Figuereo, Franklin Garcia, Arq. Reoberta Vasquez, Carlos Batista
Consultores
Electricidad: Ing. Gabino Hernandez
Sanitarios: Ing. Rafael Ramírez
Estructural: Ing. Miguel Báez Tejada
Descripción del Proyecto
Edificio Residencial
  • Atrás
  • Leer más

© 2008. All rights reserved.   Roberto Rijo + arquitectos asociados   |  Contact  |  Site Design: Kounterattack Design